Die Geschichte des Brunnens
Auf Initiative des Leipziger Rechtsanwalts
Bruno Peglau (1879-1922) wurde 1908 die „Gartenstadt Quasnitz GmbH“ gegründet.
Ziel dieser Gesellschaft war es, die 1898 von England kommende Bewegung
der Gartenstädte in Deutschland zu verwirklichen. Damit wollte man dem Wunsch
der Bürger entsprechen, die damals wie heute aus der Großstadt auf das Land
ziehen und im Grünen leben wollten. Dazu sollten ihnen Eigenheime angeboten
werden, die in der Nähe der Großstadt liegen und welche gut erreichbar sein
sollte.
Zuerst ließ die Gesellschaft südlich der Halleschen Straße, also ebenfalls
in der Gemarkung Quasnitz, in den Jahren 1910 bis 1911 am heutigen Dorettenring
20 Häuser bauen, so dass man auch hier von der Gartenstadt sprechen kann.
Gestützt auf diesen Erfolg wurde nun für ein weiteres Projekt mit diesem
Prospekt geworben.

Von 1911 bis 1913 enstanden
135 Häuser (s. auch Geschichte von Lützschena
-> Geschichte der Gartenstadt Quasnitz nördlich der Halleschen Straße).
Den Bauherren machte hier aber ein Problem zu schaffen, indem die Jungfernstiege
nicht niveaugleich gebaut werden konnte. In Ihrem Verlauf gibt es nämlich
einen Höhenunterschied von ca. 3 m.
Nun hätte man es sich leicht machen können, indem man einfach eine Treppe
in die Landschaft setzt und so die Durchgängigkeit schafft. Bruno Peglau
wusste aber um die Synthese von Architektur und baubezogener Kunst. Die
von ihm in den Bebauungsplan einbezogene Brunnenalage in der Jungfernstiege
beweist es. Wer die Idee dazu hatte, die nötigen Pläne schuf und die Anlage
erbaute, das ist leider nicht bekannt. Es sind auch keine Originalpläne
mehr vorhanden, so dass es schwierig war, den Forderungen des Denkmalschutzes
zu entsprechen und die Anlage vorbildgetreu zu renovieren. So sah sie am
Anfang vom Paulinengrund her aus:

Dasnächsted historische Foto zeigt die Jungfernstiege von Westen, also vom Kalten Born her. Gut zu sehen ist, dass die Umgebung des Brunnenensembles von Bäumen gesäumt waren. Bis auf die beiden Ahornbäume unmittlbar am Brunnen sind sie alle verschwunden. Aber auch sie sind jetzt beseitigt worden, da ihre Wurzeln viele Schäden verursachten.

Die Eltern von Edith Rühs
kauften 1918 ein Haus unmittelbar neben dem Brunnen. In ihm wurde sie 1922
geboren, wuchs darin auf und wohnte bis zu ihrem Tode darin. Sie berichtete,
dass ihr Großvater Ernst Zeißler den Brunnen betreute, das Wasser fließen
ließ und über die Sauberkeit und Funktionstüchtigkeit der Anlage wachte.
Diese Tätigkeit führte nach seinem Tode Edith´s Mutter weiter.
Frau Rühs erzählte:„Viele Stunden haben wir im Sommer gemeinsam auf der
Bank des Brunnens verbracht unter den noch heute Schatten spendenden Ahornbäumen
gesessen.“Das war sicher die Zeit, als die Anwohner noch nicht vor dem Fernsehgerät
gesessen haben. Bleibt zu hoffen, dass diese Form eines nachbarschaftlichen
Zusammenlebens wieder entsteht, wenn der Brunnen wieder sprudelt und eine
Bank aufgestellt ist. Frau Rühs hat mit hrem Mann Erich, der 1999 gestorben
ist, den Brunnen betreut.
Trotz des bürgerschaftlichen Engagements von Frau Rühs konnte der Verfall
der Anlage nicht aufgehalten werden. Es wurden deshalb von der Ge-meinde
Lützschena große An-strengungen unternommen um ihn zu retten. Trotz des
Mangels an Material und Arbeitskräften in der DDR wurde eine Reparatur durch-geführt,
indem die Bauteile aus Holz durch Betonelemente ersetzt und der Putz erneuert
wurden.
In der Ausgabe des Auen-Kurier
vom Januar 2011 wandten sich der Ortschaftsrat Lützschena-Stahmeln und unser
Heimatverein mit einem Aufruf zur Rettung des Brunnens an die Öffentlichkeit.
Um Spenden zu diesem Zweck wurde gebeten, weil im Haushalt der Stadt Leipzig
dafür keine Mittel eingestellt waren. Der Brunnen zeigte sich in jenem Winter
zwar von seiner romantischen Seite, jedoch seine Substanz war stark angegriffen,
das Wasser konnte nicht mehr angestellt werden. Zum Glück gab es keine Vandalismisschäden.
Um das Anliegen den Einwohnern der Ortschaft vor Augen zu führen hatte der
Heimatverein zum ersten Brunnenfest am 24. September 2011 eingeladen. Anlass
war auch, dass der Brunnen zu dem Zeitpunkt vor 100 Jahren gebaut wurde.
Am Ende dieses Tages waren Spenden in Höhe von 592 € eingegangen. Damit
war der Heimatverein in der Lage, eine Studie zu den Möglichkeiten der Restaurierung
in Auftrag zu geben.
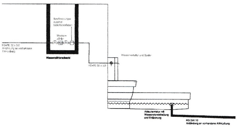
Am 18. April 2012 wurden in einer Bürgerversammlung von dem Ingenieurbüro für Siedlungswasserwirtschaft & Tiefbau drei Varianten vorgestellt, wie die Wasserversorgung erfolgen sollte. Als günstigste wurde angesehen, den Brunnen mit Frischwasser zu betreiben. Für die Restaurierung wurden 25.400 € und jähr-liche Betriebskosten in Höhe von 1.400 € errechnet. Weil die Stadt Leipzig aber den Brunnen mit der Priorität 3 einstufte könnte erst im Jahr 2013 mit der Restaurierung begonnen werden. Der Heimatverein beauftragte im August 2013 das Ingenieurbüro Heider mit der Sanierungsplanung. Das Ergebnis wurde dem Ortschaftsrat am 13. Februar 2014 vorgestellt. Es wurden Gesamtkosten in Höhe von 93.500 € errechnet.
Um das Vorhaben realisieren zu können war es nötig, dass ein Eigenanteil in Höhe von 60 T€ aufgebracht wird, damit die Stadt Fördrmittel be-antragen konnte. Der Ortschaftsrat beschloss am 13. Februar 2014, dass er diese Summe zur Verfügung stellt, da er die Mittel aus einem Lastenteilungsvertrag mit der GVZE (Güterverkehrszentrum Entwicklungsgesellschaft) besaß. Sie sollten für landschaftspflegerische Maßnahmen einge-setzt werden. Weil hierfür in der Ortschaft keine geeigneten Flächen zur Verfügung standen argumentierte man so, dass auch Stadtlandschaften der Pflege bedürfen. Nach zwei Ausschreibungen, die kein Ergebnis brachten, wurden nun Fachlose (Baumeisterarbeitungen, Holzbau, Metallbau und Wassertechnik) ausgeschrieben. In deren Ergebnis errechnete höhere Kosten wurden durch den Ortschaftsrat am 7. April 2015 bestätigt, so dass die Erfurter Firma Nuethen Restaurierungen GmbH & Co. KG am 18. Mai 2015 mit den Arbeiten begann. Alle Bauteile, die nicht dem ursprünglichen Vorbild entsprachen, mussten entfernt werden. Hinter der Vorderwand wurde ausgeschachtet, da hier der Schacht für die Wassertechnik eingebaut werden sollte. Dabei gab es wie bei anderen Bauvorhaben eine Überraschung – die Wand war nur 25 cm stark und drohte umzustürzen. Sie musste nicht nur abgestützt werden, sondern der Einbau eines Ringankers war nötig, denn nur so konnte die Statik gesichert werden. Eine zusätzliche Arbeit, mit der niemand gerechnet hatte, die zu einer Kostensteigerung und zum Terminverzug führte. Für den Ortschaftsrat blieb es aber bei den zugesagten Mitteln.
Nachdem der Schacht mit der Wasserechnik gesetzt war kamen auch die anderen Gewerke zum Zuge. Die Holzarbeiten wurden in Anlehnung an das historische Vorbild ausgeführt. Jetzt gibt es anstelle der Mauer und der Betonteile wieder einen Zaun. Die beiden Schalen des Brunnens wurden mit Blei ausgekleidet. Dadurch sollen sie vor Schäden durch Frost oder Nässe geschützt werden. Nun bleibt zu hoffen, dass sich an ihnen keine Buntmetalldiebe vergreifen. Vielleicht ist es den Anwohnern möglich, hier immer ein wachsames Auge für den Brunnen zu haben. Zu dem Ensemble gehören auch Treppen zu beiden Seiten. Ihr Zustand war so, dass sie dringend instand gesetzt werden mussten, schon allein der Sicherheit wegen. Hier lag die Verantwortung beim Verkehrs- und Tiefbauamt der Stadt Leipzig. Von ihm wurden die nötigen Mittel zur Verfügung gestellt. Zum Glück war die Firma Nuethen bereit, diese Arbeit im Interesse einer Gesamtlösung zu übernehmen. Am oberen Ende der Treppen wurden je ein Poller aufgestellt und als Hilfe für sehbehinderte Menschen geriffelte Platten eingebaut – gemäß den heute geltenden Vorschriften.
Um den Fußweg über dem Brunnen wieder ordnungsgemäß herstellen zu können war es notwendig, nicht nur die beiden Ahornbäume zu fällen, sondern auch deren mehr als 10 cm starken Wurzeln zu entfernen. Die als ihren Ersatz gepflanzten Zierkirschen sollen nun mit einer Wurzelsperre daran gehindert werden, dass sich ihre Wurzeln wieder horizontal ausbreiten und binnen kurzer Zeit Schäden verursachen, die alle Arbeiten zunichte machen.
Ursprünglich war die Fetigstellung für Mitte September 2015 geplant. Aus
den genannten Gründen kam es jedoch zu Verzögerungen, auch waren die Treppen
zusätzlich zu erneuern. Endabnahme und Baufertigstellung waren deshalb am
25. Januar 2016.
Jetzt erstrahlt der Brunnen wieder in alter Schönheit! Zu danken ist das
nicht nur dem Engagement des Ortschaftsrates und des Heimatvereins, dem
Entgegenkommen der Stadtverwaltung, sondern vor allem der hervorragenden
Arbeit der Projektanten und der beteiligten Handwerker.
Im Zentrum des Brunnens befindet sich als guten Blickfang die Figur eines jungen Satyrs, erkennbar an den Bocksfüßen. Ganz in sich gekehrt spielt er auf der Panflöte, dem Lieblingsinstrument der Hirten. In der griechischen Mythologie gelten sie als Begleiter des Weingottes Dionysos, nehmen an seinen Tänzen und Gelagen teil, lieben wie er das Essen und Trinken. Das sieht man dem jungen Kerl auch an, denn sein Bauch rührt sicher vom guten Essen her. Auch meinte man, dass der Wein von Satyrn erfunden wurde. Darauf deuten vielleicht die Girlanden mit Früchten und Weintrauben an den Seiten hin.
Zu Füßen des jungen Satyrs speien drei Gesichter das Wasser. Das Wasser fließt in die beiden Schalen und von dort in die Kanalisation. Durch die Steuerung des Zuflusses von Trinkwasser wird erreicht, dass der Brunnen nur zu festgelegten Zeiten für wenige Minuten in Betrieb ist. Dadurch wird nicht nur der Wasserverbrauch gesenkt, sondern auch die Belästigung der Anwohner durch nächtliches Plätschern. Das Programmieren der Steuerung und die Pflege des Brunnens wird durch unseren Bauhof erfolgen. Dafür stehen ihm auch die nötigen Geldmittel zur Verfügung, z.B. für das Begleichen der Wasserrechnung. Heute aber wollen wir uns über die gelungene Renovierung freuen, hoffen, dass uns dieses Schmuckstück in der Ortschaft lange erhalten bleibt!
Text, Fotos und Reproduktionen:
Archiv Heimatverein,
H. Pawlitzky, D. Bäsler
© 2016 Lützschena-Stahmeln